桜ビル辛島町 SAKURA BUILDING KARASHIMA-CHO
熊本県熊本市街地の貸オフィスビル「桜ビル辛島町」。貸物件や売物件もご紹介。
貸オフィス OFFICE ROR RENT
貸物件 PROPETIES RENT
売物件 AUAILABLE PROPETIES
会社案内 COMPANY INFO
桜ビル辛島町
熊本市中央区辛島町
305号室 31.68坪
5月入居可予定
賃料
285,120円(税別)
共益費
95,040円(税別)
敷金
1,710,720円
桜ビル詳細情報
駐車場のご案内
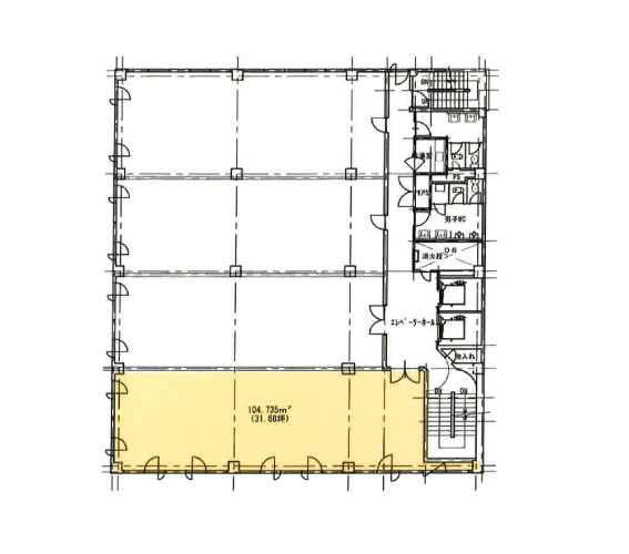
間取り
桜ビル辛島町
305号室
<5月入居可予定>
未来オフィスⅢ
201号室
<25年12月下旬引渡可>
お問合せ
電話:096-356-4455
[お電話の受付] 9:00~18:00/平日
ウェブからのお問合せ